--> 极易汽化介质立式筒袋泵的工程实例剖析 - 金年会 官方网站

北京金年会
科技有限公司

搜索
新闻详情

极易汽化介质立式筒袋泵的工程实例剖析

来源:金年会作者:王波 魏宗胜,中国成达工程有限公司

金年会法律顾问

北京市京师律师事务所 王璠律师/公司法律顾问

作者:王波 魏宗胜,中国成达工程有限公司


摘要:比较了国内外知名泵公司投标的极易汽化介质立式筒袋泵的5项工程实例,给出了详细的工艺系统技术参数表、泵的外形尺寸图、不同基准面的NPSHa和首级叶轮入口的NPSHr。对国内外立式筒袋泵的三项技术缺陷进行了分析,引用工业运行情况和工程实例进行了说明。


关键词: 立式筒袋泵;工程实例;工艺系统;技术参数;技术缺陷。


   0   

前 言



极易汽化介质立式筒袋泵的特点是,进口法兰处的介质汽化压力与泵的进口压力几乎相等,将首级叶轮降到地下,相当于首级叶轮进口处的进口压力增加了,加大了防止汽蚀的有效汽蚀余量NPSHa,这是采用立式筒袋泵的优越之处。


但立式筒袋泵存在三项技术缺陷:


其一,机械密封要密封泵的出口压力;

其二,转子检修难度很大,转子拆裝后,动平衡精度难以重复再现;

其三,大部分用两极电机,不符合当今世界上流体机械“升转速、减级数、提效率、降成本”的技术发展方向。


对于LNG用的高扬程和超高扬程的立式筒袋泵,上述三大缺陷就更突出。本文针对有代表性的5项工程项目实例进行了分析,有助于全面了解国内外知名泵公司极易汽化介质立式筒袋泵的技术现状。



   1   

为什么极易汽化介质立式筒袋泵的下部分必须埋在地下



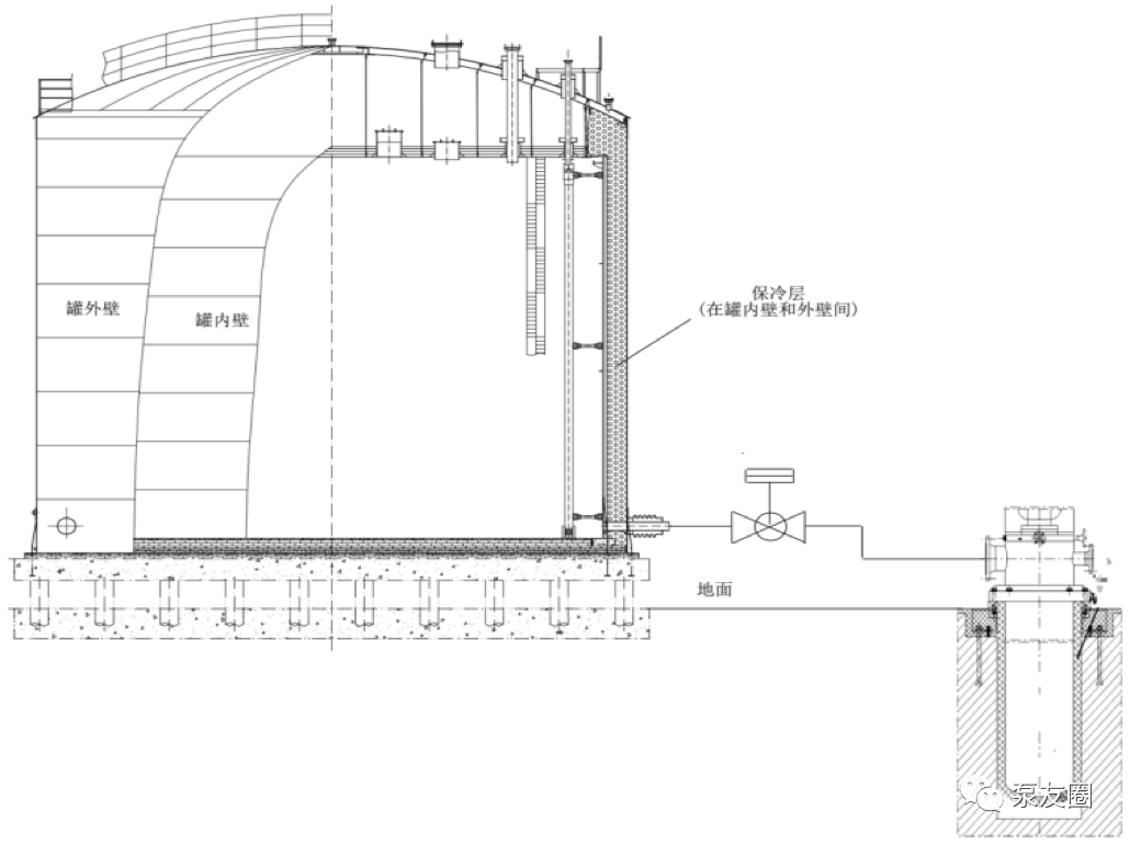
大型石化装置罐区数十台储罐容积都在2万立方米以上,例如乙烯装置中,液态乙烯储罐的容积从2万m3到10万m3,只能放在地面上[1]。图1是液态乙烯储罐及乙烯输送泵布置图,储罐外必须有选材和施工质量高的保冷层,防止因日照液态乙烯温度升高。


图片

图1. 液态乙烯储罐及乙烯输送泵布置图



   2

极易汽化介质立式筒袋泵的五项工程实例



2-1 工程实例1:神华煤制油项目罐区位号P-202A/B乙烯输送泵。


表1. 新疆神华煤制油项目罐区P-202A/B乙烯输送泵,福斯、鲁尔、ITT公司技术参数对比表


(工艺系统条件:温度-33℃、比重0.448、黏度0.08cP、汽化压力1.744MPa.A、泵进口压力1.753MPa.A、额定流量13m3/h、扬程466m)

图片

注:首级叶轮的进口在地下,应将NPSHa的基准面从基础的顶面,換算到首级叶轮的进口标高处,NPSHa将增加基础的顶面到首级叶轮的进口的高度,减去液体流经泵的外筒与泵壳之间环形通道的压力降 (用液柱表示,均按0.1m)。


图片

图2 新疆神华煤制油项目罐区P-202A/B乙烯输送泵福斯、ITT公司的外形尺寸图, 不同基准面的NPSHa和首级叶轮入口的NPSHr


从表1和图2可以看出,美国ITT公司的乙烯输送泵采用径流叶轮配径向导叶体,为提高小流量泵效率用28级叶轮。在泵底座的下表面处NPSHa=1.45 m,泵底座的下表面至首级叶轮的进口的高差为3.2m,泵外筒与泵壳之间环形通道的压力降Δh=0.1m,首级叶轮的进口标高处的NPSHa增大为NPSHa = 1.45+3.2-0.1 = 4.55 m。


该泵的NPSH3:额定流量时为1.72m,最大流量时为3.24 m。将NPSHa和NPSH3统一到同一基准面 (首级叶轮的进口)后,额定流量下,防汽蚀的富裕量 (NPSHa-NPSH3)=4.55-1.72=2.83 m。比工程设计规定的富裕量0.6 m大得多,是因为该公司追求泵效率,叶轮级数多达28级,轴向尺寸太长,造成细长转子检修困难。


API 610标准振动限制决定的最小连续稳定流量,ITT公司泵最大,转子又细长,缺陷明显。


相比而言,鲁尔和福斯采用更大直径叶轮,泵插入深度降低2米左右,在汽蚀裕量满足规范要求的前提下,泵运行稳定性大大提高。在工程实践中,泵运行稳定、维修方便,优于效率高,我公司和用户的意见一致,该位号泵选用了福斯公司的泵。


图3 美国福斯公司P-202A/B乙烯输送泵性能曲线图


此位号泵额定流量与最高效率点流量20.5m3/h的比例为63.4%,符合API 610标准优选工作区为BEP流量的70~120%的规定。最大直径叶轮的扬程为516m与额定扬程466m之比为1.107,大于API 610标准规定的至少5%。NPSHr=1.3m。

图片

图4 美国ITT公司P-202A/B乙烯输送泵性能曲线图


此位号泵额定流量与最高效率点流量16m3/h的比例为81.3%,最大直径叶轮的扬程为500m与额定扬程466m之比为1.07,NPSHr=1.72m。API 610标准振动限制决定的最小连续稳定流量为5.5m3/h,是三家公司泵中最大的,是缺陷。

图片

图5 德国鲁尔公司P-202A/B乙烯输送泵性能曲线图


此位号泵额定流量与最高效率点流量22m3/h的比例为59%,不符合API 610标准优选工作区为BEP流量的70~120%的规定。


2-2 工程实例2:南京诚志永清科技公司年产60万吨MTO项目罐区,位号P-0320C乙烯产品输送泵


表2 南京诚志公司MTO项目罐区P-0320C乙烯产品输送泵技术参数表(大连深蓝泵业公司)


(温度-32.6℃、比重0.445、黏度0.074cP、汽化压力1.845MPa.A、泵进口压力1.85MPa.A)

图片


图片

图6 大连深蓝公司P-0320C乙烯输送泵性能曲线图


2-3工程实例3:中石化中原石化公司乙烯项目,位号GA-821CN


乙烯液体输送泵苏尔寿TTMC 80-230(B)×13,比重0.449,Q100,H977,68%


表3 中原石化公司乙烯项目GA-821CN乙烯液体输送泵技术参数表(苏尔寿公司)

(温度-35℃、比重0.449、汽化压力1.69MPa.A、黏度0.077cP、泵进口压力1.694MPa.A)

图片


图片

图7中原石化公司乙烯液体输送泵性能曲线图


图片

图8中原石化公司乙烯液体输送泵外形尺寸图, 不同基准面的NPSHa和首级叶轮入口的NPSHr


2-4工程实例4:中海油宁波公司LNG项目位号P-0401A~E,美国JC Carter公司LNG高压输出泵


表4 中海油宁波公司LNG项目位号P-0401A~E, LNG高压输出泵技术参数表(美国JC Carter公司)


(温度-165℃、比重0.39、汽化压力0.76MPa.A、泵进口压力0.765MPa.A)

图片


2-5工程实例5,中海油福建公司LNG项目位号P-0401A~D, 美国荏原国际公司LNG高压输出泵


表5 中海油福建公司LNG项目位号P-0401A~D,LNG高压输出泵技术参数表(美国荏原国际公司)


(温度-156℃、比重0.426、汽化压力0.601MPa.A、泵进口压力0.607MPa.A)

图片


   3

国内外立式筒袋泵的三项技术缺陷



3-1 机械密封要密封泵的出口压力

   

机械密封及其辅助系统是VS6泵极其重要的部件,因为选型和使用不当引起的机封泄漏,占泵故障的首位。国外知名泵公司投标的VS6泵的机封冲洗方案普遍采用PLAN 13+52+62(N2),立式筒袋泵的机械密封要密封泵的出口压力,加之易汽化质的黏度很低(例如液态乙烯,温度-30℃的黏度0.0697cP,0℃的黏度仅0.043cP)润滑性很差,机封动静环的摩擦热使液膜的温度升高,黏度再降低。


如果机封腔压力与液体汽化压力的裕度不够, 将造成机封动静环端面之间的液膜汽化,出现干摩擦,将使机封迅速失效,机封冲洗系统中的节流孔板堵塞,也是机封故障的常见原因。


中海壳牌石化公司二期年产120 万吨乙烯装置,大连深蓝公司制造的乙烯产品泵(扬程102m,额定流量360m3/h)和福斯公司制造的乙烯外送泵(扬程56m,额定流量155m3/h),尽管属于低/中扬程的VS6泵,机械密封也频繁失效,后经该公司工艺与维修团队密切配合,对机械密封解体研究失效机理,分析根本原因,并进行相应改造,才解决了机封频繁失效的问题,提高了机泵的使用寿命[2]。


中石油独山子石化公司乙烯厂轻质烃类泵,兰州石化公司乙烯厂的乙烯泵和丙烯泵,也因机封频繁失效,给装置安全、平稳生产带来极大的安全隐患[3、4]。新疆独山子炼油厂罐区的立式筒袋泵检修的主要原因是因为振动严重超标引起的[5],中海油湛江分公司海洋石油平台用的原油外输泵,为13级立式筒袋式泵,尽管扬程不高为417m,转速又低,为1450rpm,机封平均每3个月更换一次,平衡鼓、平衡鼓套、口环等件磨损,整泵只能送陆上的大修厂,在专用检修平台上,按严格完整的检修规程进行拆检,精心进行转子动平衡[6]。


LNG(液化天然气)接收站高压输出泵,扬程接近2000m,主要有两种泵型,一种是传统的立式筒袋泵,配装机械密封,另一种是目前的主流泵型,立式罐内潜液泵,整个VS6泵和电机都安装在罐内的液液中,取消了机械密封,避免了机械密封失效带来的诸多问题[7]。但又增加了立式筒袋泵检修,尤其是转子动平衡难度更大的新问题。

3-2 转子检修难度很大,转子拆裝后,动平衡精度难以重复再现


(A) 传统的立式筒袋泵

图片

图9 苏尔寿公司TTMC型立式筒袋泵剖面图


如图9所示,立式筒袋泵大修时,芯包要从埋地下的泵外筒体内吊上来,因为各级叶轮与导叶体交错布置,泵转子动平衡前,必须全部解体,再将14级叶轮、键、定位卡环装在轴上,进行动平衡,合格后各级叶轮又要从轴上拆下来,才能与导叶体交错装配成芯包。再将芯包吊进地下的泵外筒体内。可见如此复杂的转子检修和动平衡程序,对装配技术水平要求非常高,通常由高级装配师傅承担此项工作,才能保证转子动平衡精度和同心度不降低。


(B) 立式罐内潛液泵

   

图片

图10美国J.C Carter公司LNG高压输送泵剖面图


图片

       图11   美国Ebara国际公司LNG高压输送泵剖面图


如图10和图11所示,潜液式低温泵在检修时,因为各级叶轮与导叶体交错布置,需要逐步拆下诱导轮、第一级叶轮、第一级导叶体,……直至拆下全部的叶轮及导叶体。在修复完受损零件,并检测合格后,需要在电机转子和泵转子的共用轴上,安装诱导轮、键、各级叶轮、定位卡环等转动零件 (不含导叶体等非转动零件),再进行一体式转子的动平衡检验。因为电机转子的轴与筒袋泵的轴连为一体,用户无法进行转子动平衡,只能送原制造厂进行,上述两公司对如何进行转子动平衡检验避而不谈,也未提供任何书面资料。                     

3-3 大部分用两极电机,不符合当今世界上流体机械“升转速、减级数、提效率、降成本”的技术发展方向。


成达公司一批化工、石化项目中,使用了苏尔寿公司和福斯公司的立式筒袋泵,合同技术附件中有这两家公司国内外VS6泵业绩表。因为立式筒袋泵检修困难,为提高运行可靠性,绝大部分用两极电机,少数用四极电机,国外少数VS6泵的转速达到4000rpm。苏尔寿立式筒袋泵国内业绩表共948台, 绝大部分用两极电机,福斯VS6泵1993~2013年在中国的部分业绩表247台泵也大部分用两极电机。


工程实例:日本荏原公司高速型高压甲铵泵在尿素装置中处于垄断地位


表7 加前置泵解决汽蚀问题用高速型6级背对背BB4泵,明显优于GE-新比隆公司的中速12级BB5泵


询价条件:输送介质为氨基甲酸铵溶液,Q=45 m3/h,t= 72.5℃,γ=1.216,Ps=4.52bar.A,Pd=169.52bar.A,△P=165bar,H=1382.4m,Pv=3.3bar.A,NPSHa=9.48m

图片


由于氨基甲酸铵溶液的蒸汽压较高,GE-新比隆公司的方案是采用2980rpm转速的BB5型泵,12级叶轮,叶轮外径300 mm。


日本荏原公司采用8457r/min高速BB4泵方案,叶轮仅3+3级,全部为单吸叶轮,背靠背布置平衡轴向力,叶轮外径198mm,增加了一台前置增压泵,用450kW-2P电机一拖二。前置增压泵耗电11.7kW,NPSH3=2.6m,主泵的进口压力提高到10.49 bar.A,NPSHa=60m,无汽蚀问题,总轴功率比中速泵方案少16.3kW。高速方案的最大优势还在于,制造成本预计为中速方案的一半以下。因此,荏原公司的高压甲铵泵在尿素装置中一直处于垄断地位,至今已有200多套高压甲铵泵在全球运行。


参考文献

[1] 李力松.乙烯低温储罐抗震设计探讨[J].乙烯工业, 2018, 030(001):12-18.
[2] 周峰.乙烯产品泵乙烯外送泵机械密封改造[J].化工管理,2020,(21):155-156
[3] 张曦,辛芳.浅析球罐双端面机械密封失效的原因及解决方法[J].化工管理,2020 (12): 172-173.
[4] 张磊,刘艳英,等.双断面机械密封失效原因及解决措施[J].乙烯工业,2011, 23(1): 35-38.
[5] 黎晓勇,梁春育,陈文忠.立式多级离心泵故障诊断及分析处理[J].设备管理与维修,2018,(4):110-112
[6] 张海荣.某海洋石油平台筒袋式外输泵检修要点与思考[J].石油和化工设备, 2015,18(9):103-106
[7] 全国化工设备技术中心站编.工业泵选用手册,第二版[M].北京:化工出版社, 2011:315-319.


更多精彩内容,关注金年会微信号(ID:bengyouquan)

金年会2.png